Обяви 0 За нас Контакти
Продава КЪЩА
град Бургас, с. Маринка
270 000 €
528 074.10 лв.

(1 534 €, 3 000.24 лв./m2)
Цената е с включено ДДС
История на цената
Коригирана в 11:45 на 15 април, 2026 год.
Обявата е посетена 258 пъти.
Площ:
176 m2
Двор:
267 m2
Строителство:
Тухла, Ще бъде въведен в експлоатация 2026 г.

Описание на имота:


🏡 Предлагаме за продажба самостоятелна къща, част от малък комплекс от четири къщи, разположен в тих и спокоен район на с. Маринка. Имотът се продава заедно с прилежаща част от парцела 🌿

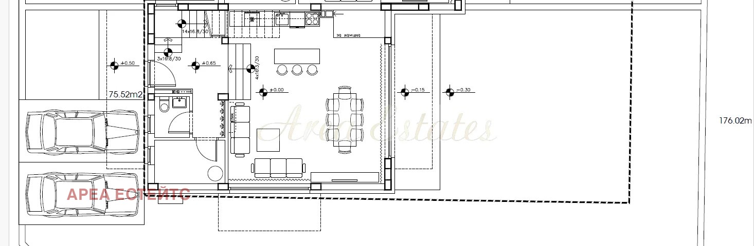
РЗП 176.02 кв.м

Двор 267 кв.м.

Къщата е на два етажа и е със следното функционално разпределение:
🛋️ Първи етаж: просторен и светъл хол с кухненска зона /43.44 кв.м/, тоалетна /2.28 кв.м/🚻, склад /4.9 кв.м/, тераса ;
🛏️ Втори етаж: четири спални, една от които със самостоятелна баня /14.73 кв.м, 12.19 кв.м, 14.75 кв.м, 12.46 кв.м/, 2 бани /5.39 кв.м, 4.28 кв.м/ 🚿

Имотът се издава по БДС стандарт 🧱 и е подходящ за целогодишно ползване ❄️☀️

Строителството започна Октомври 2025г.

Планиранана готовност Октомври 2026г.

💰 Схема на плащане:
30% при подписване на Предварителен договор ✍️
30% при достигане на Акт 14 🏗️
30% при получаване на Акт 15 🏢
10% при получаване на Акт 16 🔑

📍 Разположение:
Къщата се намира на 15 минути от центъра на Бургас ,в развиващ се нов район на с. Маринка, с удобен достъп и спокойна жилищна среда 🌳
Особености
Тухла
За контакт:
0877367070
Агенция:
АРЕА ЕСТЕЙТС
0896698673
В imot.bg от 2025 г.
areaestates2102.imot.bg
Адрес:
област Бургас, гр. Бургас, гр. Бургас, ул. Георги Кирков 7
ИЗПРАТИ ЗАПИТВАНЕ
ИЗПРАТИ ЗАПИТВАНЕТО

Продава КЪЩА
град Бургас, с. Маринка
Обява: 1j176762342865590

270 000 €
528 074.10 лв.
История на цената
(1 534 €, 3 000.24 лв./m2)

Цената е с включено ДДС
ЗАПАЗИ ОБЯВАТА

Местоположение: град Бургас, с. Маринка

Допълнителни данни за имотите в района и сравнение с други райони

Покажи

Период

и 5 месеца

* Средните цени са определени чрез медианна стойност